



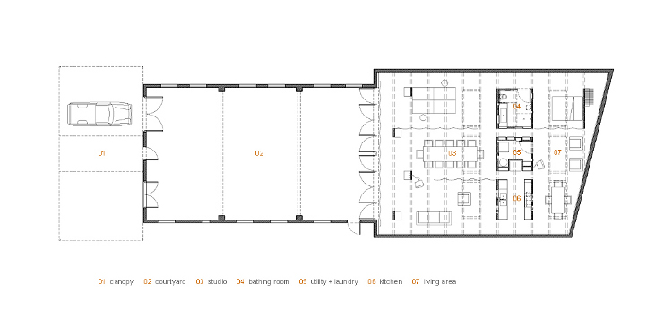
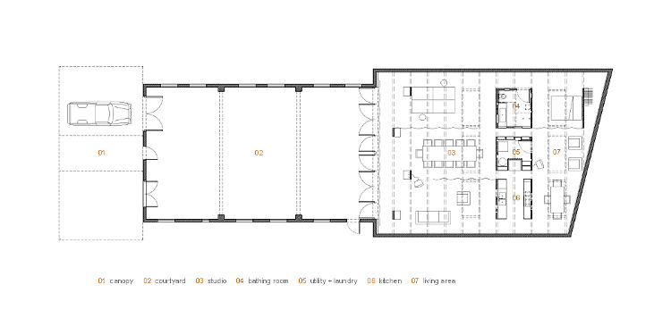
Talk about transformation : across the freight train line in the bad part of town an old garage has a new lease on life. Abandoned and derelict it now houses a studio and living space as well as an open courtyard. This rough and ready building is now being used as a home and workspace. By Atlanta architects Brian Bell and David Yoachim of bldgs.








Holger Schubert lives in Los Angeles, California, and he loves dream cars. He loves them so much he designed a dream garage for his dream car.
Creative modern loft in Bordeaux, designed by Teresa Sapey Estudio located in an industrial district.
An oasis of peace out of time in the center of Cape Town, South Africa: an unusual home set in a 19th century Protestant church.
If you’re looking for some loft interior inspiration, check this contemporary interior by Studio Santalla located in Washington, United States.
San Francisco interior designer Ken Fulk is creating buzz and delight with bold and witty décor. His loft in San Francisco’s gritty South of Market district offers jolts of color, playful wit and a spirited view of modern design.
Do you love your car enough to live with it? I mean in the same room. While it’s not always practical, this transparent live-in garage is unique for sure!
This transformation of an old garage into a very stylish contemporary residence took place under the attentive supervision of Italian studio Ego Vitamina Creativa.
Rolf Bruggink, a Dutch designer, calls the crumbling town house he renovated in Rotterdam the Black Pearl, after the black painted brick facade that replaced the original one.
Chisinau-based studio GAS completed the design of a generously-sized apartment located in Chisinau, the capital of Moldova.
When you start with a cold, concrete rectangle filled with odd spaces, you need to add elements of color and texture to soften and warm the space.
For today, I brought a large gray and red loft in New York. The living room has plenty of space. The red accent color is repeated all over the place.
When Hollie and Sean Strasburg bought their loft in the Tire Town building in Salt Lake City, they knew immediately that they wanted to bring the space back to its industrial roots.
A former warehouse was transformed into this modern loft in Brussels, Belgium by SHSH architects. The goal was to create an experience of colors and textures – on a limited budget. The concept revolved around the loft as ‘the ocean’ and constructed elements (kitchen, bedrooms, bathroom) as ‘the islands’.
In the heart of Mount Pleasant’s brewery district, just a short walk away from a variety of restaurants and breweries, you’ll find the Mecca. This double-height, Insane Vancouver Loft is most probably the largest unit in the building.
You could miss this industrial loft for a library – a huge bookshelf dominates the living room.

What Others Are Saying