


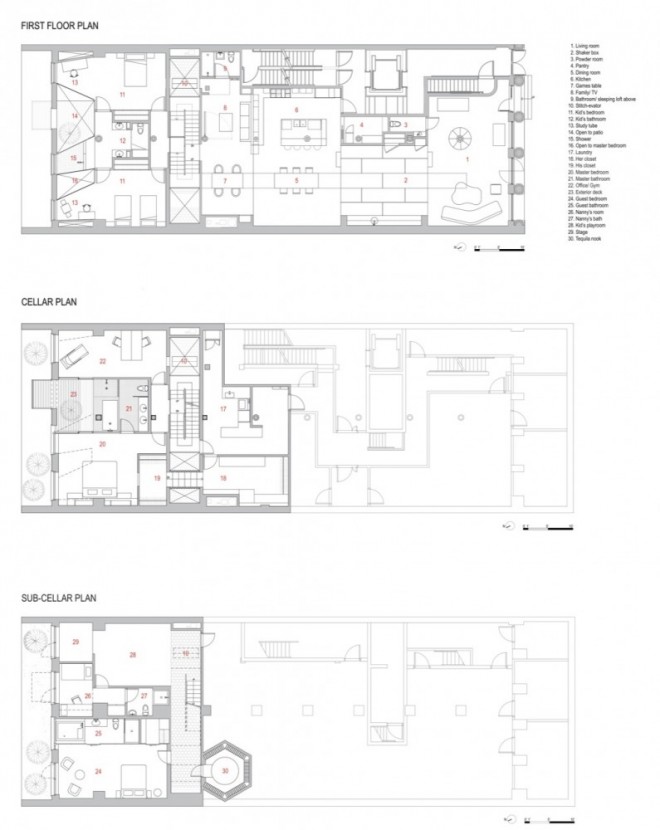
Architects WORKac has recently completed this fantastic interior: a 6,000 SF loft apartment that encompasses a full ground floor, half a basement and one third of a sub-basement: an “inverse triplex†for a family of four that loves to entertain.
For more than four years, WORKac has collaborated with the family to create a new space for urban living that embraces diversity of materials and spaces, kinetic interventions to transform spaces and a highly developed sense of whimsy and the unexpected.
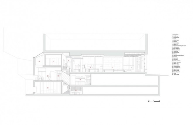
The classic New York minimalist loft was considered too constraining and inflexible. The concept therefore was to divide the space into a series of programmatic “stripes†to accommodate different functions, moods and materials and break down the length of the apartment into a promenade of experiences, from most public at the front to most private in the back. This is combined with a shifting of the rear floors to allow for three full-height levels.
The stripes consist of: the Living Room at the front of the apartment, with white resin floors and a loft-lke minimalist feel; the bamboo Shaker Box which has built-in storage and Japanese-style tables set in the floor – it can double as a stage or dance floor; the Kitchen/Dining room with plum-colored concrete floors and walls and a more formal arrangement of a table for 12 to 16 and an enormous kitchen; the Media Room where curved felt-covered walls, floor and ceiling provide a comfy nook for hanging out – a kids-only sleeping loft above provides space for sleep-overs.
The Void is an indoor light shaft with a mesquite-tiled floor that accommodates the circulation as well as a “Stitchevator†(named after the family dog) carrying tired dogs, snacks or toys between levels and a translucent bridge connecting the Master to a megacloset behind; the Bedrooms zone contains two kids rooms at the top, Master at the basement level and Nanny and Guestroom at the bottom; the Skylight strip employs a number devices (glass, voids, an outdoor courtyard) to distribute light among all of the levels; the rear Garden is a small stripe of green – and chicken coop.
All of the ground-floor stripes are connected by a series of unique tables. The Dining Room table can be extended with a leaf, the Shaker Box tables can be raised or lowered, the Living Room table doubles as a chandelier and can be lowered from the ceiling. All of the tables can be joined together for huge dinners, or twice a year to form a catwalk that can connect to the stairway in the void for the fashion designer’s new collections.
What Others Are Saying