


This luxurious penthouse is part of an imposing Gothic revival structure at London’s St. Pancras railway station. (Harry Potter movie fans will recognize the oft-filmed exterior as the station where students embark for Hogwarts.) For years the 19th-century structure had languished in disrepair. It stood neglected until the mid-2000s, when the Manhattan Loft Corporation embarked on an ambitious renovation. But though the building’s exterior was restored to its former glory, the onset of the recession meant the interior got just a basic makeover.
Enter financial and real estate professional Arran Patel. He bought this penthouse, one of three in the St. Pancras Chambers above the St. Pancras Renaissance London Hotel, and commissioned a luxury renovation from Thomas Griem of TG-Studio. “It’s a fantastic space, set over three floors,” Griem says. “Arran briefed me to create an amazing loft space that would complement and enhance the heritage of the building. He gave me a lot of creative freedom to decide how. We literally stripped everything out and started from scratch.”

Because the building is listed as a Grade I structure on England’s National Heritage List, Griem had to obtain permission to do some of the renovation work, such as changing the staircase and extending the mezzanine. He also furnished the apartment. It was a lengthy process, but the result is a surprisingly warm and cozy home with a cutting-edge vibe. “Arran’s often away on business, but he was so impressed with the finished penthouse, he decided to move in permanently,” Griem says.

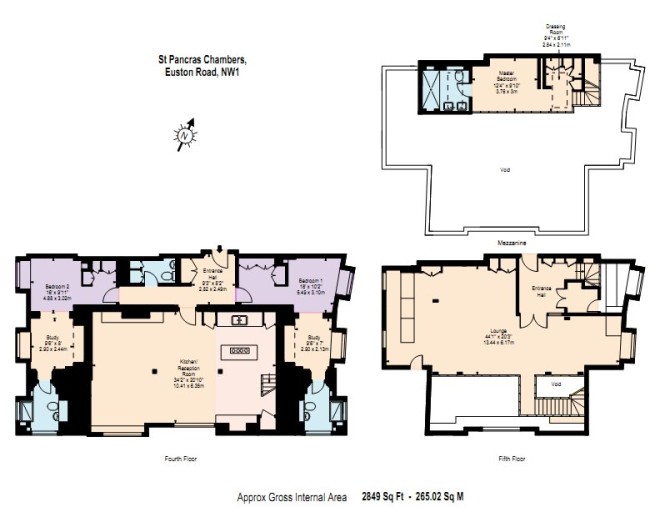
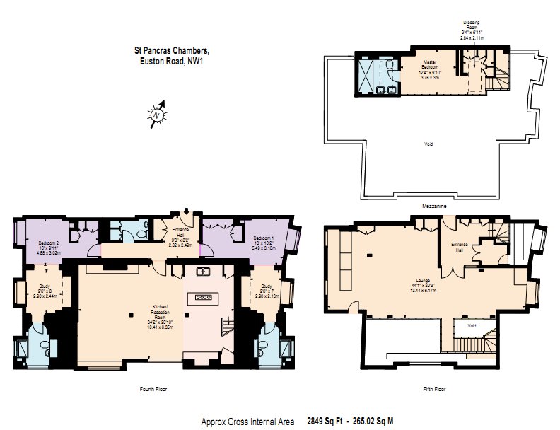
The layout of the three floors has remained largely unchanged due to significant planning restrictions associated with Grade I–listed buildings. “We were very limited, but we managed to increase the mezzanine slightly,” Griem says. “We also ripped out the cumbersome spiral staircases that connected the floors in favor of a more comfortable, contemporary design.”
The first floor of three contains a casual open kitchen plan with dining and tv/entertaining area. The Arabescato stone acts as a vertical feature behind the TV. The dining table and chairs are from Poliform, the sofa from Zanotti, and rug from The Rug Company.

Glorious views across the city can be enjoyed from the deep sofa in the formal sitting room on the middle floor. Griem opted for a neutral palette with touches of color and pattern to create a sophisticated feel. “I focused on providing quality finishes throughout the property, and this translates to the furnishing as well,” he says.
Two enormous chairs add drama to the spacious room, with a marble-topped coffee table at the center.
“The billiard table [seen at left] is the only piece of furniture Arran brought to the property,” Griem says. “It’s quite funky, so I introduced some fun elements, such as the classic Arco lamp, to play on this theme.”
For practical reasons Griem had the Roman blind on the tall window fitted with a motor. “The window is absolutely enormous,” he says.

Opposite the dining room, a new staircase proved to be quite a feat of engineering. “The staircase is actually supported by the cupboard behind it and cantilevers off it,” Griem says.
The bookcase with a reading area under the stairs is made from the same Schotten & Hansen wood as the floor and provides invaluable concealed storage. “Arran uses the reading area all the time. It’s a very cozy, calming space in which to read a newspaper and have a cup of coffee in the morning,” says Griem.

The mezzanine floor at the top of the apartment houses the glamorous master bedroom. The space oozes luxury, from the recessed silk carpet to the silk wallpaper. “The rest of the apartment is very voluminous,”Griem says, “so this space is designed to feel warm and cozy.”

Huge Portuguese travertine tiles lend a cave-like quality to the en suite bathroom. “I wanted to make this a masculine space, so as well as the TV recessed in the wall, we’ve introduced dark timber and lacquer to give it gravitas,” Griem says. Mirrors span one wall to create the impression of more space.

The his-and-her en suite bathrooms are a glamorous affair, despite their relatively small footprint. “These rooms are in the turret of the building, so they’re very tall but quite small, making them both difficult and interesting to decorate,” Griem says. Clad in Arabescato marble, each bathroom features a chandelier hung low from the ceiling as a play on the dimensions of the rooms.