


GRAFT has recently completed Loft Hamburg, a beautiful modern loft in Hamburg, Germany as a personal residence for client Vanessa Kullmann.
Reportedly costing $200,000, the loft makes wonderful use of space with a freestanding centralized wood veneer kitchen that contains a half bath and built-ins whose surfaces blend into the wall angles.
Materials like stone and wood bring a warmth to the modern design and the space is thoughtfully designed to accommodate media and work needs as well as living and lounging needs.
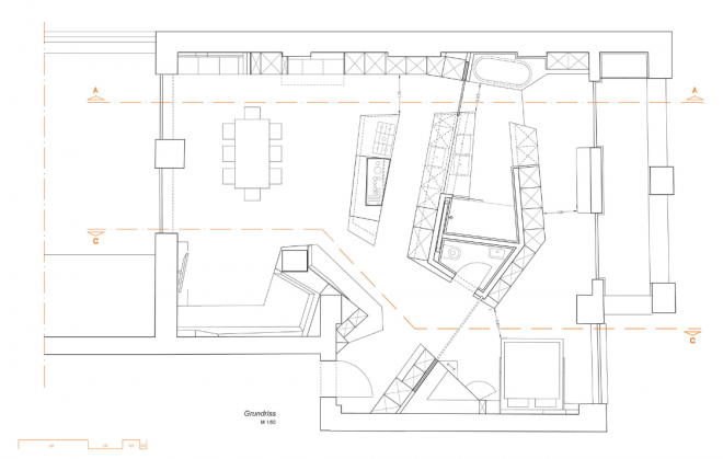
Nothing says ‘this room is special’ like setting it apart both in terms of material choice and physical space. For residents of this ultra-modern loft, it is clear that the kitchen is the top priority; it is the core area around which the rest of the layout (also be the designers of GraftLab) revolves.
In plan, the angles of the kitchen define the adjacent spaces. In perspective, the ‘island kitchen’ is both a unique built-in space in the center of the condo and a semi-freestanding partition that helps divide the adjacent living and dining areas that wrap around it.
Clad in high-grade wood veneer – in turn cut by thin and criss-crossing lines of black – the kitchen encourages movement through and around it, each perspective different from the last. Shelves and counters are also sliced out of the main volume, making it seem almost as if the space was hewn from a solid block of wood.
A small bathroom toilet space is also carved into the core kitchen box, accessed from the opposite site of the main cooking and food preparation spaces and hidden nicely in a cove that is almost invisible when closed (its door being made of the same sheets of plywood veneer that cover the rest of the zone). Across the way, and not for the shy, sits a bathtub which is surrounded by stone which also connects back into the flooring of the kitchen area – a strange but interesting design choice.
Note how the wall panel and console top slide open and closed to reveal the monitor and storage:

Recessed lighting and built in banquets help to make the most of the space:
Tile serves as both a bathtub backsplash and seamlessly blends into the kitchen flooring:
What Others Are Saying